Product
Recommended news
- The brushless DC pump is one of the pumps. The pum...
- Some users will encounter the phenomenon of large ...
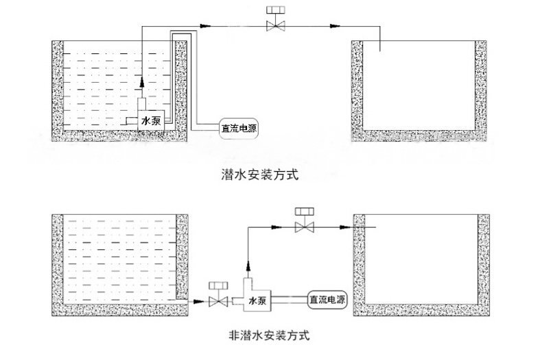
- The brushless DC water pump plays an important rol...
- The efficiency of the brushless DC pump is the pro...
- The brushless DC pump has greatly improved corrosi...
- The water pump plays an important role in daily li...
Location:Product / Brushless Water Pump / Computer water cooling pump
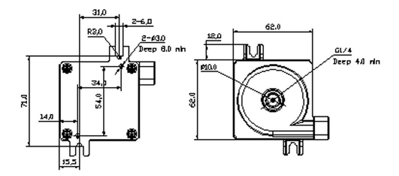
Water pump for water-cooled motor
Product Category:Brushless Water Pump
Detailed introduction












